26–Focus Jugend

2020 / Studienauftrag / Kriegstetten

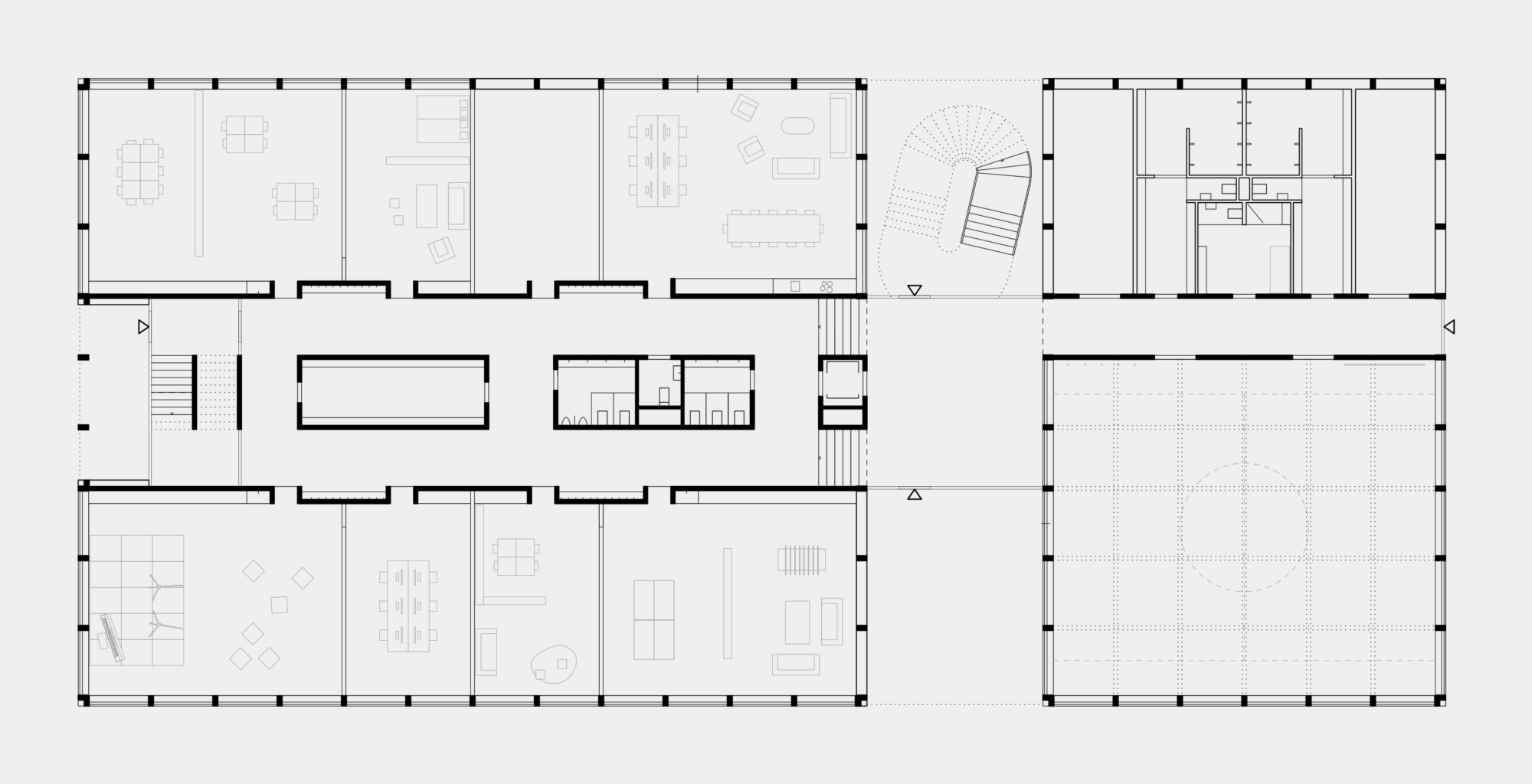
Das Projekt für die Schulerweiterung der sonderpädagogischen Institution focus jugend schlägt zwei Baukörper vor: Das Unterstufenschulhaus im Süden der Parzelle und das Oberstufenschulhaus mit der Turnhalle im Norden der Parzelle. Die beiden neuen Gebäude betten sich dank ihrer Orientierung und den Steildächern ganz natürlich in den Bestand der Anlage ein.
Die beiden Schulgebäude basieren auf dem gleichen Prinzip und sind in ihrem Innern bis auf wenige Ausnahmen gleich organisiert. Diese Einfachheit und Analogie erleichtert den Kindern die Orientierung und hilft Ihnen, sich wohl zu fühlen. Beide Schulhäuser verfügen über einen transparenten Zwischenraum. Dieser ist gleichzeitig Erschliessungsraum, Pausenhalle, Terrasse und Treffpunkt für die Kinder der verschiedenen Klassen.
Die Klassen- und Gruppenräume reihen sich, getrennt durch nichttragende Wände aneinander. Dies garantiert eine grosse Anpassungsfähigkeit für künftige Bedürfnisse, denn so können die Räume beliebig neu angeordnet, zusammengelegt und aufgeteilt werden.
Diese Flexibilität ist auch in der Fassade mit ihren vorfabrizierten Betonelementen ablesbar, welche je nach Nutzung und je nach Intimitätsbedürfnis offener oder geschlossener ausgeführt werden können.