25–Kinder- und Jugendzentrum

2019 / 4'000m2 / Wettbewerb 2. Rang / Visualisierungen: Nightnurse Images

An der Bahnhofstrasse, zwischen dem Dorfzentrum und dem Bahnhof befinden sich die Gemeindeverwaltung und die Sekundarschulanlage von Tägerwilen. Die markanten Bauten der bestehenden Anlage orientieren sich zum gemeinsamen Schulhausplatz. Gegen Norden und gegen Osten bleiben so weite Freiflächen erhalten, die als Parkplätze und als Festwiese genutzt werden.
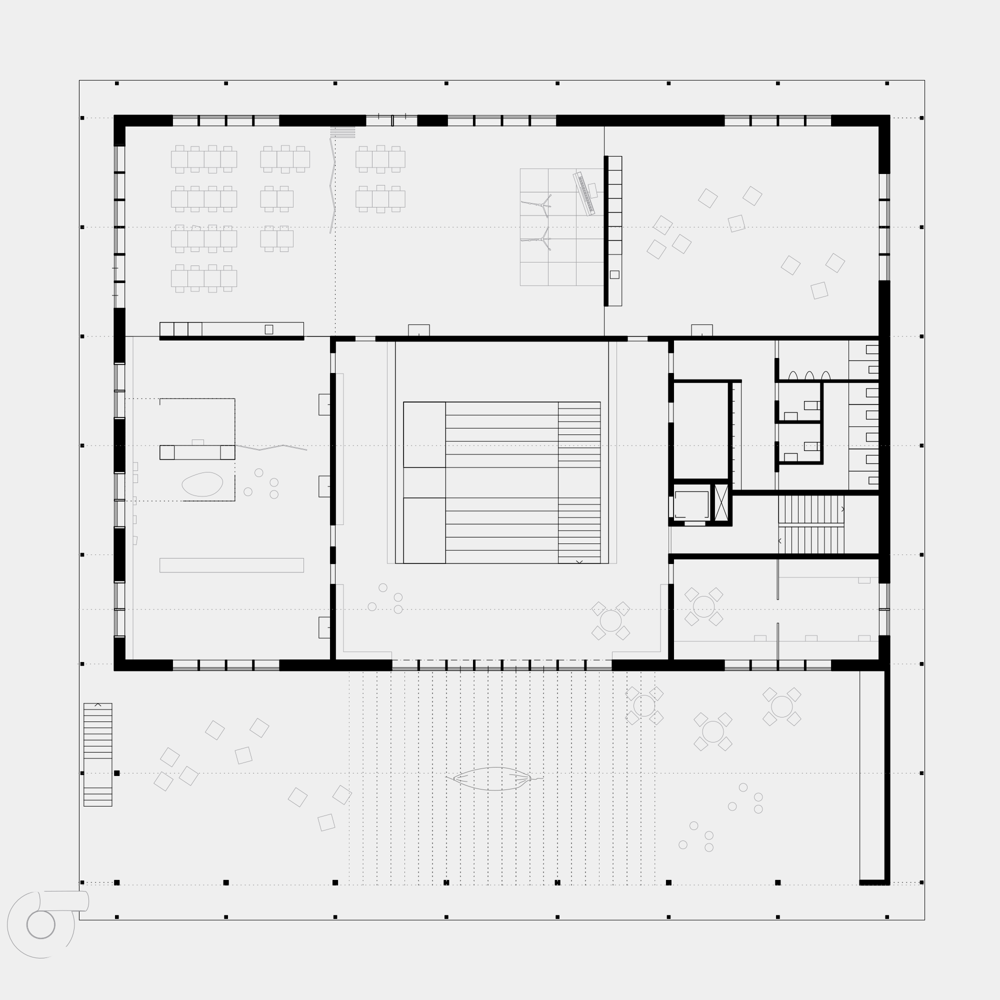
Das neue Kinder- und Jugendzentrum  führt mit seinem nahezu quadratischen Grundriss die Massstäblichkeit der bestehenden Schulanlage fort. Es steht parallel zur Strasse und spannt zusammen mit dem Gemeindehaus einen grosszügigen Platz als Ankunfts- und Begegnungsort auf, welcher das neue Zentrum städtebaulich markiert. Es beinhaltet zwei Kindergärten, neue Räume für die Tagesschule und für die kirchliche Jugendarbeit und steht so jungen Nutzern verschiedener Altersgruppen offen.

Durch die Dachform wird das Gebäude für das Kind als „Haus“ im eigentlichen Sinn erkennbar. Die Dächer bilden die Raumstruktur nach aussen ab. Das Spiel mit der besonderen Identität und Massstäblichkeit, welche auf die Nutzung verweist, setzt sich im Innern weiter fort und erzeugt abwechslungsreiche und wohnliche Räume.