44–Pfarreiheim Neuendorf

Pfarreiheim | 2021 | 600m2 | Wettbewerb 1. Rang | Neuendorf

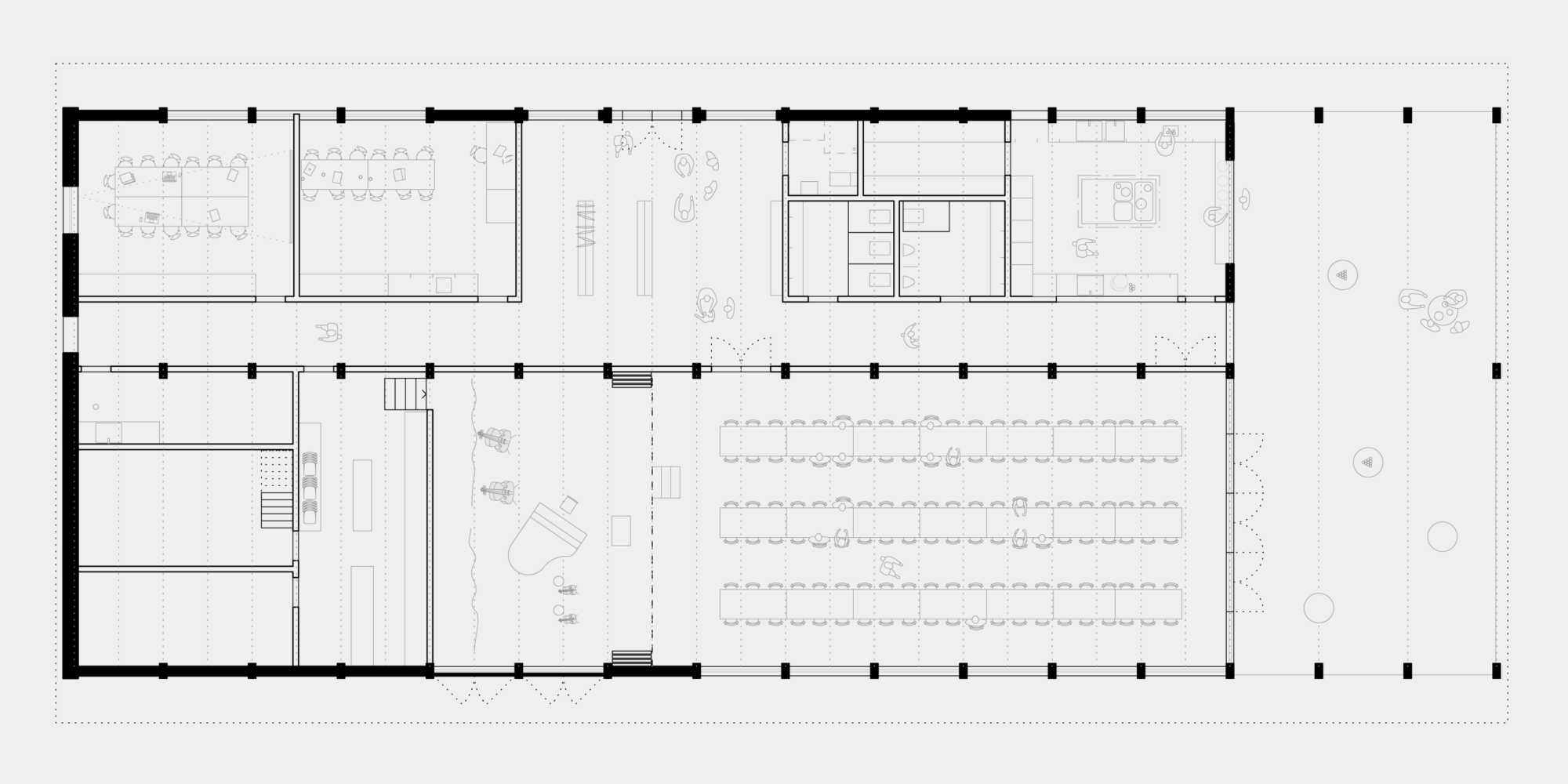
Neuendorf ist ein typisches Strassendorf, welches sich entlang der Dorfstrasse entwickelt hat. Dies ist noch heute an der dichten, beinahe geschlossenen Bauweise entlang dieser Hauptachse spürbar. Die Kirche bildet hier mit ihren teils historisch wertvollen Nebengebäuden und dem Friedhof ein schönes Ensemble. Der Neubau liegt im Süden des Friedhofs und profitiert von der Anbindung an das historische Ensemble im Norden und der Aussicht in den offenen Grünraum und die «Hostet» im Süden.

Er ist als eingeschossiger Pavillon als einfaches Gebäude geplant, welcher dank seines gleichmässigen Rasters eine grosse Nutzungsflexibilität bietet. Ein grosszügiges Foyer führt vom Eingang zum zentralen Korridor als Rückgrat des Gebäudes. Dieser verbindet die verschiedenen Nutzungen miteinander und bindet das Pfarreiheim in die anliegenden Aussenräume ein.

Der Holzsystembau bietet grosse Flexibilität und ermöglicht eine hohe Vorfertigung in der Erstellung.Die Firstpfette des Pfarreiheims ist in der Höhe versetzt, wodurch im Innenraum interessante räumliche und visuelle Qualitäten entstehen und dem Gebäude eine prägnante Silhouette geben. Die einfache Gebäudestruktur zieht sich im Osten des Gebäudes weiter und schafft so eine gedeckte Terrasse. Diese ist sowohl direkt vom Saal, dem Herzstück des Gebäudes, als auch über den Korridor unabhängig zugänglich.

Die einfache, regelmäßige Tragstruktur bildet sich in der Fassade ab. Sie ist mit gleichteiligen Elementen mit einer einfachen Holzschalung gestaltet. Vordächer schützen die roh belassene Schalung. Das Konzept der Materialisierung ist es, wo immer möglich, natürliche, nachwachsende Rohstoffe zu verwenden. Die Materialisierung ist einfach aber wertig. Das einfache Ziegeldach, die Holzschalung und das Mauerwerk der westlichen „Wettermauer“ verankern das Gebäude im Ort.

Die Aussenraumgestaltung orientiert sich am Bestand, in dessen Wegnetz sich das Gebäude einbettet. Mit einfachen Eingriffen entstehen kleine Plätze mit unterschiedlichen Funktionen und Privatheitsgraden.